【產品用途】

【閥門型號】
消聲止回閥常見的型號有h11h-16t、h11h-25t、h11x-16t、h11x-25t、h41x-16、h41x-16p、h41x-25、h41x-25p、h41h-16、h41h-16p、h41h-16t、h41h-25、h41h-25p、h41h-25t、hc41x-16、hc41x-25等。
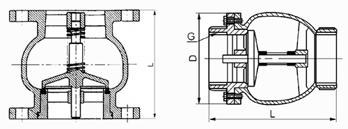
【結構簡圖】

【性能參數】
公稱通徑有DN15、DN20、DN25、DN32、DN40、DN50、DN65、DN80、DN100、DN125、DN150、DN200、DN250、DN300、DN350、DN400、DN450、DN500等。
公稱壓力有1.0MPa、1.6MPa、2.5MPa等。
工作溫度一般小于等于80攝氏度。
消聲止回閥適用介質一般是水。
零件材料一般有不銹鋼、鐵殼銅芯、全銅等。
【外形尺寸】
H11系列消聲止回閥主要外形尺寸
| DN | 15 | 20 | 25 | 32 | 40 | 50 |
| G | 1 1/2 | 3/4 | 1 | 1 1/2 | 1 | 2 |
| L | 65 | 75 | 90 | 105 | 120 | 140 |
| D | 45 | 48 | 58 | 66 | 74 | 89 |
H41系列消聲止回閥主要外形尺寸
| DN(mm) | 40 | 50 | 65 | 80 | 100 | 125 | 150 | 200 | 250 | 300 | 350 | 400 | 450 | 500 |
| L(mm) | 112 | 120 | 130 | 150 | 165 | 190 | 210 | 255 | 310 | 362 | 380 | 450 | 545 | 580 |
聲明:本文中所有文字、數據、圖片均只適用于參考,性能參數、結構尺寸參數、價格等詳情,請聯系我們,電話:021-59170722!